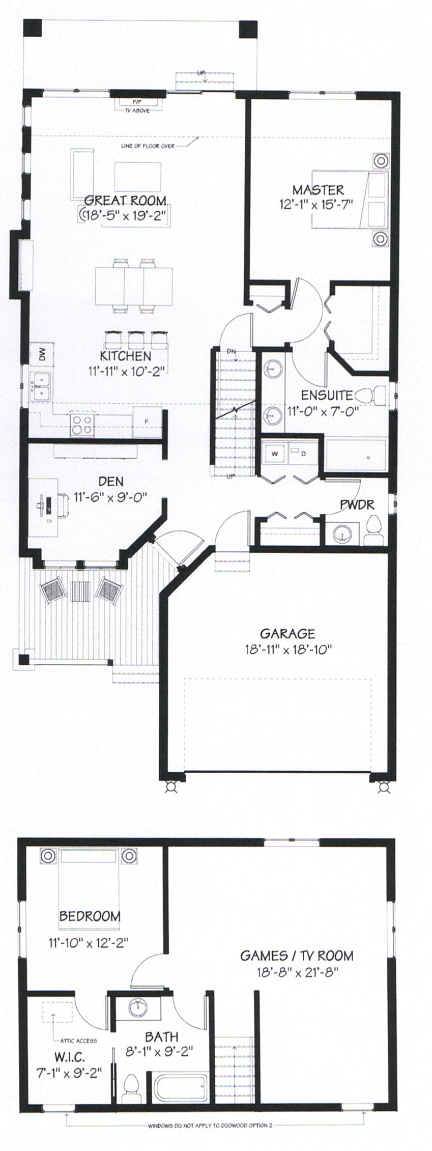
Dogwood

1900—2023 sq ft
2 Bedrooms & Den
2.5 Bathrooms

  • Beautifully crafted 9’ ceilings with T and G finishing great room area;
  • Spacious two-level rancher, with primary living on main floor;
  • Incredible open space multi-use room located upstairs;
  • Exquisite Barn doors in primary bedroom, adding a touch of unique design and ease of use.

Ready to Move In? Let’s Chat!

sales@mallowayvillage.ca

604-991-2495

Contact Us

Show Home

Step inside our luxurious show home to see all that Malloway Village has to offer.

Lot #79, Extended Sycamore Home

Saturday — Sunday, 1pm — 4pm
*by appointment weekdays
6211 Chilliwack River Rd. Chilliwack, BC
Get Directions

Floor Plans

Dogwood, Standard Floor Plan, 1900 Sq ft

floorplan layout for Standard
Download Standard Plan

Site Plan

Gallery

Request A Sales package

Fill out the form to receive your sales package, including floor plans, standard features and a price list.